nachhaltig & modern: Ihre stylische Neubau-Doppelhaushälfte mit KfW 55 Standard
Informationen zur Immobilie:
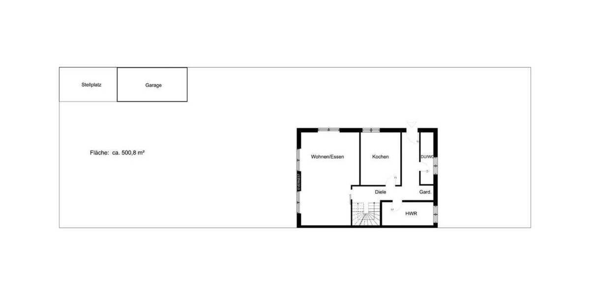
Zimmeranzahl
4
Ort
44267 Dortmund
Objektart
Haus
Größe
ca. 159,00 m²
670.000 €
Beschreibung:
Mehr zum Angebot nachhaltig & modern: Ihre stylische Neubau-Doppelhaushälfte mit KfW 55 Standard:
Diese stilvolle Neubau-Doppelhaushälfte mit einem KfW 55 Standard bietet Ihnen nicht nur modernes Wohnen, sondern auch eine nachhaltige und energieeffiziente Lösung. Mit einer Wohnfläche von 159,47m² und einem offenen Bereich... mehr erfahren
Diese stilvolle Neubau-Doppelhaushälfte mit einem KfW 55 Standard bietet Ihnen nicht nur modernes Wohnen, sondern auch eine nachhaltige und energieeffiziente Lösung. Mit einer Wohnfläche von 159,47m² und einem offenen Bereich... mehr erfahren
weitere Häuser